Innviðir styrkjast

Sveitarfélagið Ölfus hefur vaxið og dafnað hratt seinustu ár enda velferðin þar sótt á forsendum verðmætasköpunar. Íbúum hefur á fáum árum fjölgað um hátt í 30%. Það er til marks um þessa sókn að fasteignum hér hefur fjölgað um 27% á seinustu 10 árum. Vaxandi byggð kallar á aukna þjónustu og nú þegar eru áform sem um munar.


Í Þorlákshöfn er í dag rekin Krónubúð af miklum myndarskap. Þrátt fyrir mikla lipurð starfsmanna og talsverðar endurbætur á seinustu árum dylst okkur sem þar versla ekki að plássleysið er mjög hamlandi þáttur í þjónustunni.

Krónan séð frá Selvogsbraut eftir stækkun.



Það er því ánægjulegt að sjá áform þeirra um að stækka verslunina um hvorki meira né minna en 80%. Núverandi húsnæði er 465 m2 en verður 835 m2 eftir stækkunina. Þá verður lóðin öll tekin í gegn. Bílastæðum fjölgað og boðið upp á rafhleðslu og bensínsölu.

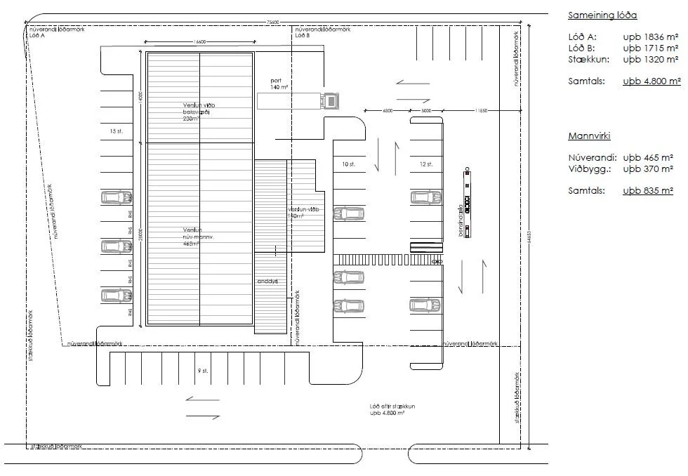
Loftmynd sýnir glögglega hversu mikil breytingin er

Húsnæðið stækkar úr 465 m2 í 835 m2 og bílastæðum fjölgar mikið.

Ég er sannfærður um að þarna er bara eitt dæmi um það sem koma skal.

Previous
Previous

Húsnæði á Íslandi er of dýrt!

Next
Next

Nýr leikskóli byggður í Ölfusi