Skólahúsnæði í raun aldrei fullbyggt

Skólahúsnæði er í raun aldrei fullbyggt.  Eftir því sem kröfur til náms breytast og eðli skólastarfs þróast þarf að aðlaga húsnæðið.  Húsnæði GRV er allt komið til ára sinna þótt sannarlega hafi mikið verið snikkað og að sniðið við upphaflega húsnæðið.  Nú stendur yfir undirbúningur að nokkrum framkvæmdum þar til viðbótar.  Að hluta til er þar um að ræða framvæmdir til að mæta niðurstöðu rýnivinnu sem farið var í með kennurum og öðru starfsfólki.

Meðal helstu framkvæmda eru: 

a) Breyting á bókasafni Hamarskóla þannig að rýmum til sérkennslu og aðstöðu sérfræðinga fjölgar og aðstaða bókasafns verður lagfærð.

b) Breyting á bókasafni í Barnaskólanum þannig að aðstaða tölvuvers og bókasafns er hægt að samnýta og þar með talið samnýta starfsmann til að sinna báðum rýmum.

c) Endurnýjun á salernisrými starfsmanna við kennarastofu sem er orðið gamalt og lúið.

d) Stækkun á kennarastofu og rými til að vista yfirhafnir og skápa fyrir starfsmenn Barnaskólans.

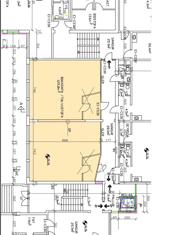
Breyting á bókasafni í Hamarskóla

Þörf er á rými í Hamarskóla fyrir sérkennslu og aðstöðu fyrir sérfræðinga skólans. Búið er að teikna upp möguleika á því að koma fyrir tveimur rýmum í aðstöðu núverandi bókasafns sem verður að sama skapi minnkað. Búið verður til eitt rými sem er um 36,6 fm, annað sem verður 15,5 fm og bókasafnið minnkar úr 132,8 fm í 80,7 fm. Samhliða verður skipt um gólfefni og loft og ljós endurnýjuð. Saga þarf fyrir einum glugga í útvegg. 

Breyting á bókasafni í Barnaskóla

Stjórnendur GRV hafa óskað eftir því að getað tengt tvær kennslustofur með því að útbúa tvöfalda hurða á milli. Önnur stofan er nýtt sem tölvuver en hin sem aðstaða bókasafns og heimanáms. Með því að getað opnað á milli er hægt að samnýta starfsmann til að sinna aðstoð sem og að nemendur geti nýtt sér aðstöðu tölvuvers og bókasafns samtímis. Saga þarf vegg á milli stofa, setja upp tvöfalda hurð, setja upp glugga í millivegg og hugsanlega skipta um eða lagfæra gólfefni. 

Endurnýjun salerna

Starfsmenn Barnaskólans hafa í langan tíma kvartað yfir salerni við kennarastofu. Til stóð að endurnýja salernin við breytingarnar á Barnaskólanum árið 2006 en horfið var frá því vegna mikils kosntaðar við þær breytingar. Salernin eru lítil og lúin. Búið verður til tvö stærri salerni inn af núverandi salernisrými, fataskápi komið fyrir sem stúkar af innganginn í salernisaðstöðina og núverandi eldhús á kennarastofu hliðrað til. 

Stækkun á kennarastofu

Kennarastofan í Barnaskólanum er of lítil fyrir þann fjölda starfsmanna sem eru í skólanum. Hingað til hefur þetta verið leyst með því að starfsmenn fari í kaffi eða mat á misjöfnun tímum en það dugar ekki til. Á sama hátt hefur verið fundið af því að ekki sé til staðar lokuð aðstaða fyrir starfsmenn til að geyma yfirhafnir sínar. Hugmynd er að stækka aðstöðuna suðaustur af núverandi kennarastofu og byggja upp tvær hæðir. Kennarastofan stækkar um 8 fm og verður þá um 63 fm í stað 55 fm. Á fyrstu hæðinn skapast jafn stórt læsanlegt rými fyrir skápa og fataherbergi fyrir

Fylgt úr hlaði

Sem fyrr segir er skólahúsnæði í raun aldrei fullbyggt enda skólinn síkvik stofnun ætlað lykilhlutverk í að búa nemendur undir virka þátttöku í lýðræðisþjóðfélagi í sífelldri þróun.  Hér að ofan er gerð grein fyrir þeim helstu framkvæmdum sem eru á döfinni hjá Grunnskóla Vestmannaeyja.  Þessu til viðbótar verður ráðist í miklar framkvæmdir á skólalóðun og er heildar hönnun þeirra þegar hafin.

Previous
Previous

Gef kost á mér til að leiða lista Sjálfstæðismanna í vor

Next
Next

Mikið álag á kennurum